
Tuesday, March 30, 2010
MeiShan Courtyard Boutique Hotel
Objective: To design a luxury courtyard style boutique hotel that will provide unique guest rooms based on the Chinese Garden; the room themes will be based on planting such as bamboo, jasmines, mums, peonies, and lotus. Depending on where you are the colors are warm, bold and subtle. Each room will communicate to the center of the courtyard which will house the stage for special cultural events and occasions. The courtyard is also inspired from the Chinese Garden, water features and landscape will be provided for a calm, relaxing, atmosphere.
Main Building Concept Statement
Objective: To design a courtyard where community members and visitors can enjoy a day of relaxation while still learning about the Chinese culture by using the Chinese Garden as a key design element to create walkways that open onto a central courtyard which will create an open layout that blends with the surrounding outdoors to bring the inside outside. The Courtyard building will inspire one to think of an original Chinese Garden; it will expand the visitor knowledge, encourage exploration and curiosity. One will learn about a classical Chinese garden through the use of local planting and landscaping that will be used in the garden and inside of the building as themes for each room.
Main Elements of a Chinese Garden
-Rocks- rocks will remind visitors of the beauty of the mountains evoked in Chinese settings.
-Water- used for beauty, to provide listening satisfaction, and also function as a way to absorb heat and adjust the microclimate during the warm seasons.
-Plants- used for beauty and are important in the summer in a perfect Chinese garden.
-Building Elements- moon gates, windows, pass ways
-Water- used for beauty, to provide listening satisfaction, and also function as a way to absorb heat and adjust the microclimate during the warm seasons.
-Plants- used for beauty and are important in the summer in a perfect Chinese garden.
-Building Elements- moon gates, windows, pass ways
Concept Design
Both Building will be based on a traditional Chinese Garden. The main purpose of the Chinese garden is to provide a quiet refuge place. The Chinese garden also served as a place for scholars to gather together to discuss philosophy, art, and politic.
The feeling of a Chinese Garden
“ walking through a Chinese Garden one would feel a sense of the county’s cultural traditions, including the philosophy, architecture, poetry, painting, calligraphy, and gardening…….. One could think of the moon gate of a Chinese Garden as a gateway.”
The feeling of a Chinese Garden
“ walking through a Chinese Garden one would feel a sense of the county’s cultural traditions, including the philosophy, architecture, poetry, painting, calligraphy, and gardening…….. One could think of the moon gate of a Chinese Garden as a gateway.”
Wednesday, March 3, 2010
Tuesday, March 2, 2010
Sustainable Features
· Allow sun and natural ventilation to enter inside the rooms from the courtyard and balcony areas.
· Use large opening doors on the balconies to help cool the rooms.
· Main priority is to design for summer winds, second priority is to design summer shade and allow winter sun to enter.
· Provide Landscape- Trees, plants etc.
· Use of local material- woods, plants etc.
· Use large opening doors on the balconies to help cool the rooms.
· Main priority is to design for summer winds, second priority is to design summer shade and allow winter sun to enter.
· Provide Landscape- Trees, plants etc.
· Use of local material- woods, plants etc.
MeiShan Courtyard Boutique Hotel
Objective: To design a luxury courtyard style boutique hotel that will provide unique guest rooms based on Chinese cultural themes and also to provide a courtyard that will accommodate a stage and auditorium that will display Chinese cultural events for the residents and visitors of Hunan Province, China.
A message to the users
MeiShan Courtyard Boutique Hotel the one of its kind nestled in the MeiShan Cultural and Ecological Park, Invites you to a one of kind niche that will provide you with a unique experience of traditional Chinese architecture by incorporating wood framing and contemporary furnishings and lighting. Each themed suite at MeiShan Courtyard Boutique Hotel will be individually designed with matching bath or shower rooms relating to Chinese themes dealing with culture, food, nature, and events. Depending on where you are the colors are warm, bold and subtle. Each room will communicate to the center of the courtyard which will house the auditorium and stage for special cultural events and occasions. In the courtyard traditional lanterns, natural materials, water features and landscape will be provided for a calm, relaxing, atmosphere. Small meeting rooms will also be provided to serve as meeting place.
Amenities:
Themed Guest Rooms
Family Suites (with kitchen)
Double Suites
ADA Suites
Meeting rooms
Auditorium
Stage
Courtyard
Guest Room Balconies
A message to the users
MeiShan Courtyard Boutique Hotel the one of its kind nestled in the MeiShan Cultural and Ecological Park, Invites you to a one of kind niche that will provide you with a unique experience of traditional Chinese architecture by incorporating wood framing and contemporary furnishings and lighting. Each themed suite at MeiShan Courtyard Boutique Hotel will be individually designed with matching bath or shower rooms relating to Chinese themes dealing with culture, food, nature, and events. Depending on where you are the colors are warm, bold and subtle. Each room will communicate to the center of the courtyard which will house the auditorium and stage for special cultural events and occasions. In the courtyard traditional lanterns, natural materials, water features and landscape will be provided for a calm, relaxing, atmosphere. Small meeting rooms will also be provided to serve as meeting place.
Amenities:
Themed Guest Rooms
Family Suites (with kitchen)
Double Suites
ADA Suites
Meeting rooms
Auditorium
Stage
Courtyard
Guest Room Balconies
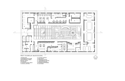
Courtyard Dinning (Main Building)
Objective: To design a courtyard where community members and visitors can enjoy a day of relaxation while still learning about the Chinese culture; through the use of food, art work, music, natural materials and using nature as a key design element to create walkways that open onto a central courtyard which will create an open layout that blends with the surrounding outdoors to bring in the inside outside.
A message to the users
Are you visiting, or just want to relax; we have a solution for you. Come and discover the ultimate relaxation experience for yourself. Enjoy the calm, creative, and intimate interiors, through our finest casual dining areas, spacious meeting rooms, bar, and outdoor courtyard that will provide eating areas. The interior of the building will display a Chinese style decor that will include many shades of beige, and browns that will create a warm atmosphere. Also contemporary furniture and noble materials will be used to create a soft feeling. The spaces are influenced by natural materials, nature, and Chinese inspired art work. Fulfill your taste buds through our spicy Xiang Cuisine. Our outdoor courtyard spaces are fulfilled with continuous water features and landscape, which creates a calm and relaxing atmosphere.
Amenities:
Reception/ Lobby
Hotel Shop
Conference/ Meeting Rooms
Kitchen
Dining Room
Casual eating/ buffet
Bar
Built in Art Gallery (which would be incorporated within the lobby and
Circulation points)
Outdoor Pavilion Courtyard
A message to the users
Are you visiting, or just want to relax; we have a solution for you. Come and discover the ultimate relaxation experience for yourself. Enjoy the calm, creative, and intimate interiors, through our finest casual dining areas, spacious meeting rooms, bar, and outdoor courtyard that will provide eating areas. The interior of the building will display a Chinese style decor that will include many shades of beige, and browns that will create a warm atmosphere. Also contemporary furniture and noble materials will be used to create a soft feeling. The spaces are influenced by natural materials, nature, and Chinese inspired art work. Fulfill your taste buds through our spicy Xiang Cuisine. Our outdoor courtyard spaces are fulfilled with continuous water features and landscape, which creates a calm and relaxing atmosphere.
Amenities:
Reception/ Lobby
Hotel Shop
Conference/ Meeting Rooms
Kitchen
Dining Room
Casual eating/ buffet
Bar
Built in Art Gallery (which would be incorporated within the lobby and
Circulation points)
Outdoor Pavilion Courtyard
Subscribe to:
Comments (Atom)




























